- 详细信息
SMRS采用全中文显示,是按照中国人自己的习惯方式来设计集电机启动器和保护器于一体的一款智能软起动器产品,其操作简单,性能可靠,具有完好的启动效果,产品使用无需外加电机保护器,电机启动和运行过程中均具有完好的保护作用。
■ 产品具备缺相、过载、欠压、过压、过热等多重保护,无需外加电机保护器等装置,启动和保护一站式
■ 友好的人机对话界面,全中文式显示,完全符合中国人自己的操作模式,设置各种参数和编程优化启动和保护性能
■ 提供4-20mA模拟电流,有效和自动化系统对接,实时检测电机运行电流
■ 具备限流、电压、电压+突跳等多种启动模式可选择,适合各种复杂工况
■ 能实现一台软起动拖动多台电动机
■ 具备保护报警功能以及故障储存、启动次数储存和查询功能
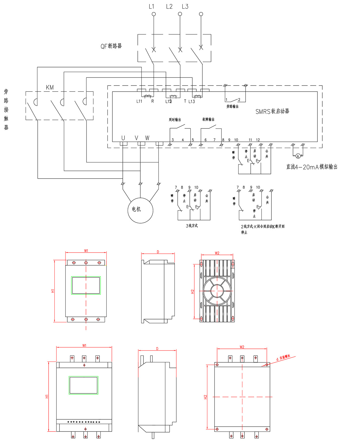
外控接点特性
旁路输出
01、02为软起动器启动完成后闭合,控制旁路接触器
可编程输出
03、04为继电器可编程输出,可编程设置发出准备、启动、旁路、故障、运行等多种信号
故障输出
05、06为故障继电器输出,软起动器发生故障或断电时闭合,接通电源时断开(接点容量AC250V/3A)
瞬停输入
07和10断开时电机立即停止(或串接其他保护器的常闭点)
软停输入
08和10断开时电机执行减速软停止(或自由停止)
启动输入
09和10闭合时电动机开始启动运行
公共端
10为接点输入信号的公共端子
模拟输出
11、12为4-20mA直流模拟输出,用于监视电动机的运行电流,满量程20mA时对应电动机标称额定电流,可外接4-20mA直流电流表监视信号,该输出负载电阻最大值为300欧
起停控制特性
起始电压
30-70%,调节可提升启动力矩
停机时间
0-60S可调
软起时间
0-60S
启动模式
限流、电压、突跳+电压等多种启动模式可选
控制方式
键盘、外控、键盘+外控等多种控制方式可选
个性保护特性
过载保护
50-200%
欠压保护
40-90%
过压保护
100-130%
保护选择
0-4,不保护、轻载、标准、重载、高级多种保护方式可选
额定电流
额定电流可调,对应电机额定电流让保护更加完善快速
参数设置
关键参数设置需要两个参数组合设置才能生效,以免用户误操作
使用环境
三相电源
380V±15%、660V±15%,50Hz
适用电机
鼠笼式三相异步电动机
启动频率
建议每小时不超过20次
抗冲击
15G/11ms
抗震能力
海拔3000m以下,振动力装置0.5G以下
环境温度
—30℃-55℃
环境湿度
95%以下,无冷凝或滴水
海拔高度
1000m以内不降容(1000m以上,每增加1000m,电流降低5%)
SMRS机箱外形尺寸和安装尺寸 功率(KW) 外形尺寸(MM) 安装尺寸 安装孔径MM 重量(KG) H1 W1 D W2 H2 55KW及以下 290 146 160 132 248 6 3.5 75-200KW 530 257 200 196 380 8 20 220-320KW 560 290 250 260 470 8 20 400KW 590 330 250 265 500 8 20 500-600KW 660 410 250 370 550 8 25
SMRS-SC接线图及外形安装尺寸
